Добро пожаловать на http://vipplan.ru

Випплан Елец - это тысячи проектов домов в нашем каталоге!

Вы всегда сможете найти для себя проект дома вашей мечты! Даже если этого не случилось, мы готовы в любую минуту предложить проект индивидуального дома.

Забыли пароль?
Вы еще не регистрировались?

Перейдите по ссылке ниже на страницу регистрации.

Регистрация...

Внимание!!!

В проектную документацию могут быть внесены изменения любой сложности, в соответствии в Вашими пожеланиями!

Полезные статьи

Применение ленточных фундаментов

Большинство людей никогда не сталкивались с выбором фундамента, а, столкнувшись, не могут определиться с выбором. Ведущие специалисты в области строительства утверждают, что лучшим типом фундамент - ленточный фундамент. Как показывает статистика, ленточный фундамент очень популярен среди жителей нашей страны. ...

Печи и камины в частном доме

Спросите любого человека, и вы поймете, что каждый человек мечтает иметь свой собственный дом, который он сможет обустроить так, как ему хочется. Этот дом будет полон уюта, тепла, света и комфорта, а главное, что, придя с работы, человек сможет запросто отдохнуть у своего очага.  Нет никакой альтернативы перед выбором печи или камина. Эти две вещи не сможет  заменить ни искусственный свет, ни солнечное освещение. Камин и печь, с древности, считаются предметом роскоши. Ни один большой дом не может обойтись без них, поскольку если удастся сесть и посидеть перед этим местом, то долго нельзя будет...

Проекты домов и коттеджей > Каталог проектов домов > Одноэтажный дом с мансардой, парилкой и гаражом Vg3678

Одноэтажный дом с мансардой, парилкой и гаражом Vg3678

Одноэтажный дом с мансардой, парилкой и гаражом
Зарегистрируйтесь

Проект № Vg3678


Техническое описание
Общая площадь: 114.5 м2
Жилая площадь: 27.14 м2
Высота здания: 8.61 м
Размеры дома: 17.78м×7.18м
Кол-во комнат: 3
Цокольный этаж: нет
Гараж: нет
Мансарда: есть

Kонструкция
Фундамент: ленточный
Перекрытия: деревянные балки

Архитектурный раздел
Конструктивный раздел
Инженерный раздел
Цена проекта: АР+КР - 48 000
АР+КР+ИР - 110 000
Проект одноэтажного дома с мансардой, парилкой и гаражом, с размерами здания 17,78х7,18 м. Фундамент -монолитная ж/б лента. Наружные стены здания - арболит с утеплением минеральной ватой, вентилируемым воздухным зазором и отделкой сайдингом. Внутренние стены здания - газобетон и кирпич пустотелый. Перегородки здания - кирпич пустотелый. Пол этажа - деревянные балки. Межэтажное перекрытие - деревянные балки перекрытия с теплошумоизоляцией в межбалочном пространстве. Крыша - двухскатная. Кровля — металлочерепица. Окна — металлопластиковые.
Генплан застройки участка / Паспорт проекта 7000 руб / 10000 руб
Инженерный раздел (полный) 57500 руб
Смета на строительство 28750 руб
Теплотехнический расчет материалов стен Бесплатно
Стоимость проекта со незначительнми изменениями 39100 руб
Стоимость проекта со средними изменениями* 65800 руб
Стоимость проекта со значительными изменениями** 68100 руб

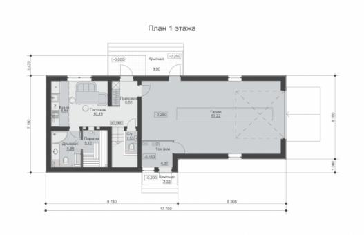
План первого этажа


Прихожая - 6,51 м2
Гостиная - 10,19 м2
Кухня - 4,54 м2
Душевая - 5,99 м2
Парилка - 5,12 м2
С/у - 1,53 м2
Тех помещение - 4,37 м2
Гараж - 53,22 м2

План мансардного этажа


Холл - 6,00(8,68) м2
Спальня - 8,03(11,72) м2
Спальня - 8,60(12,50) м2
Одноэтажный дом с мансардой, парилкой и гаражом Одноэтажный дом с мансардой, парилкой и гаражом Одноэтажный дом с мансардой, парилкой и гаражом Одноэтажный дом с мансардой, парилкой и гаражом
Внесение изменений и привязка к участку строительства

В любой из проектов от компании VIPplan - Елец по вашему желанию могут быть внесены изменения в материалы стен, материалы наружной отделки дома, а также будет произведена адаптация проекта под конкретный регион строительства (с учетом грунтов региона, геологических особенностей вашего участка и местных климатических условий) - БЕСПЛАТНО !!! (кроме проектов со скидкой и проектов наших партнеров).

Любой из проектов, размещенных на сайте elets.vipplan.ru мы можем выполнить из требуемых вам строительных материалов: ячеистый бетон (газобетон, пеноблок), керамоблок, кирпич, шлакоблок, бетонный блок, дерево (брус, клееный брус), каркасная технология (деревянный каркас, металлокаркас (ЛСТК)).

Фасад дома и его наружную отделку так же возможно выполнить с применением различных облицовочных материалов: структурной штукатурки, (с утеплителем и без), сайдингом (пластиковый или металлосайдинг), фиброплитами, кирпича.

 
6 Избранные
проекты

Доставка проектов по России: Москва (Московская область), Санкт-Петербург (Ленинградская область), Краснодар, Ростов-на-Дону, Ставрополь, Сочи, Волгоград, Новосибирск, Белгород, Брянск, Воронеж, Саратов, Хабаровск, Астрахань, Нальчик, Владикавказ, Екатеринбург, Тюмень, Самара, Нижний Новгород, Казань, Пермь, Уфа, Челябинск, Красноярск, Ханты-Мансийск, Иркутск, Курган, Оренбург, Омск, Томск, Барнаул, Новокузнецк, Кемерово, Абакан, Чита, Якутск, Южно-Сахалинск, Петропавловск-Камчатский и страны ближнего зарубежья: Белоруссия, Украина, Казахстан