Добро пожаловать на http://vipplan.ru

Випплан Елец - это тысячи проектов домов в нашем каталоге!

Вы всегда сможете найти для себя проект дома вашей мечты! Даже если этого не случилось, мы готовы в любую минуту предложить проект индивидуального дома.

Забыли пароль?
Вы еще не регистрировались?

Перейдите по ссылке ниже на страницу регистрации.

Регистрация...

Внимание!!!

В проектную документацию могут быть внесены изменения любой сложности, в соответствии в Вашими пожеланиями!

Полезные статьи

Выбор сайдинга

Прежде чем купить сайдинг, нужно определиться зачем он нужен: для защиты фасада от непогоды, для придания привлекательности внешнему виду дома или для утепления дома.Что же из себя представляет сайдинг? Сайдинг – это материал для облицовки фасада из компаунда. В данной статье мы поможем Вам определиться выбором сайдинга для отделки фасада дома...

Газобетонные перекрытия

Перекрытия из газобетонных плит, устанавливаются без применения подъемников и кранов. Строители устанавливают прочные и, что немаловажно, легкие газоблоки без помощи техники. Ячеистый бетон (пенобетон и газобетон) нашел широкое применение в домах из пенобетона и газобетона в Ельце...

Проекты домов и коттеджей > Каталог проектов домов > Удобный одноэтажный дом с гаражом Vg1011

Удобный одноэтажный дом с гаражом Vg1011

Удобный одноэтажный дом с гаражом
Зарегистрируйтесь

Проект № Vg1011


Техническое описание
Общая площадь: 129 м2
Высота здания: 6 м
Размеры дома: 13м×17м
Кол-во комнат: 4
Цокольный этаж: нет
Гараж: нет
Мансарда: нет

Kонструкция
Фундамент: Ленточный монолитный ж/б
Перекрытия: Деревянные балки
Материал стен: Бетонные блоки

Архитектурный раздел
Конструктивный раздел
АР+КР - 52 000 (Со скидкой 20%)
Проект индивидуального одноэтажного жилого дома с размерами 13.46 x 16.96 м. Наружная отделка здания – облицовочный кирпич. Отделка цоколя – клинкерная плитка. Фундамент – ленточный монолитный ж/б. Наружные стены запроектированы из керамзитобетонных блоков и утеплителя с воздушным зазором и отделкой облицовочным кирпичом. Внутренние стены – из керамзитобетонных блоков. Перегородки – из керамзитобетонных блоков. Пол этажа – пол по грунту. Перекрытие чердачное – по деревянным балкам с использованием теплошумоизоляционных материалов. Перемычки монолитные и из профиля проката. Крыша - многоскатная. Материал кровли – металлочерепица. Окна - металлопластиковые, выполненные по индивидуальному заказу.
Генплан застройки участка / Паспорт проекта 7000 руб / 10000 руб
Инженерный раздел (полный) 64500 руб
Смета на строительство 32250 руб
Теплотехнический расчет материалов стен Бесплатно
Стоимость проекта со незначительнми изменениями 61750 руб
Стоимость проекта со средними изменениями* 71500 руб
Стоимость проекта со значительными изменениями** 74000 руб

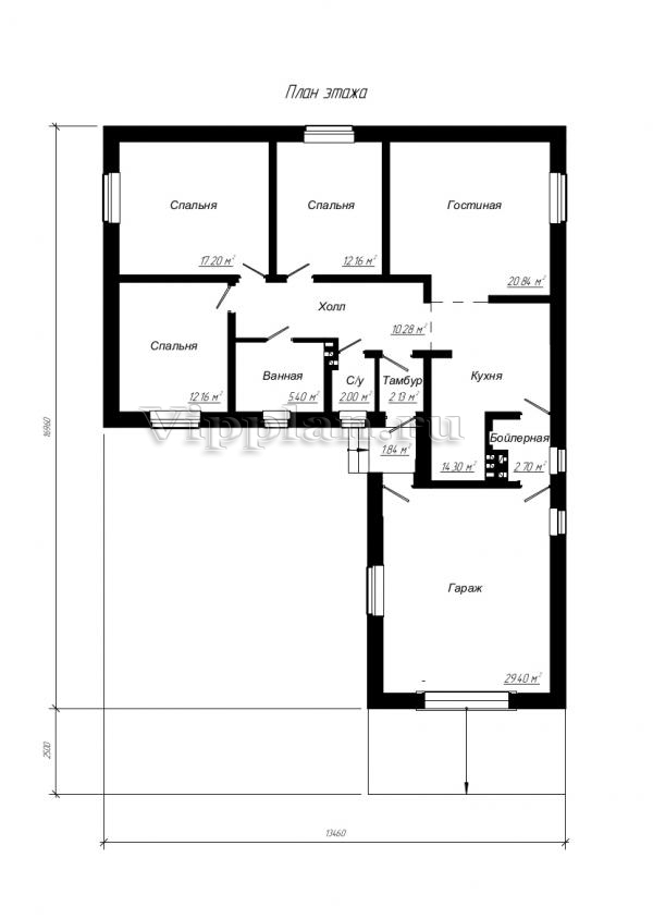
План первого этажа


Тамбур — 2,13 м2
Холл — 10,28 м2
Гостиная — 20,84 м2
Спальня — 12,16 м2
Спальня — 17,20 м2
Спальня — 12,16 м2
Ванная — 5,40 м2
Кухня — 14,30 м2
С/у — 2 м2
Бойлерная — 2,70 м2
Гараж — 29,40 м2
Удобный одноэтажный дом с гаражом Удобный одноэтажный дом с гаражом Удобный одноэтажный дом с гаражом Удобный одноэтажный дом с гаражом

Модификации проектов

Внесение изменений и привязка к участку строительства

В любой из проектов от компании VIPplan - Елец по вашему желанию могут быть внесены изменения в материалы стен, материалы наружной отделки дома, а также будет произведена адаптация проекта под конкретный регион строительства (с учетом грунтов региона, геологических особенностей вашего участка и местных климатических условий) - БЕСПЛАТНО !!! (кроме проектов со скидкой и проектов наших партнеров).

Любой из проектов, размещенных на сайте elets.vipplan.ru мы можем выполнить из требуемых вам строительных материалов: ячеистый бетон (газобетон, пеноблок), керамоблок, кирпич, шлакоблок, бетонный блок, дерево (брус, клееный брус), каркасная технология (деревянный каркас, металлокаркас (ЛСТК)).

Фасад дома и его наружную отделку так же возможно выполнить с применением различных облицовочных материалов: структурной штукатурки, (с утеплителем и без), сайдингом (пластиковый или металлосайдинг), фиброплитами, кирпича.

 
6 Избранные
проекты

Доставка проектов по России: Москва (Московская область), Санкт-Петербург (Ленинградская область), Краснодар, Ростов-на-Дону, Ставрополь, Сочи, Волгоград, Новосибирск, Белгород, Брянск, Воронеж, Саратов, Хабаровск, Астрахань, Нальчик, Владикавказ, Екатеринбург, Тюмень, Самара, Нижний Новгород, Казань, Пермь, Уфа, Челябинск, Красноярск, Ханты-Мансийск, Иркутск, Курган, Оренбург, Омск, Томск, Барнаул, Новокузнецк, Кемерово, Абакан, Чита, Якутск, Южно-Сахалинск, Петропавловск-Камчатский и страны ближнего зарубежья: Белоруссия, Украина, Казахстан