Добро пожаловать на http://vipplan.ru

Випплан Елец - это тысячи проектов домов в нашем каталоге!

Вы всегда сможете найти для себя проект дома вашей мечты! Даже если этого не случилось, мы готовы в любую минуту предложить проект индивидуального дома.

Забыли пароль?
Вы еще не регистрировались?

Перейдите по ссылке ниже на страницу регистрации.

Регистрация...

Внимание!!!

В проектную документацию могут быть внесены изменения любой сложности, в соответствии в Вашими пожеланиями!

Полезные статьи

Выбор участка для строительства дома

Если вы решили приобрести участок земли и построить на нем дом или дачу. То данная статья специально для вас. А так же мы поможем вам в выборе проекта для выбранного вами участка....

Уклон кровли дома

Чтобы вода быстрее уходила с кровли Вашего дома, скатам необходимо придать уклон, который выражающийся в процентах или градусах и измеряющийся геодезическими инструментами. Уклон кровли обозначает угол наклона ската к горизонту. Чем больше уклон, тем круче крыша. У новомодных зданий наклон кровли делают не очень большим....

Проекты домов и коттеджей > Каталог проектов домов > Проект двухэтажного особняка с цоколем Vg1379

Проект двухэтажного особняка с цоколем Vg1379

Проект двухэтажного особняка с цоколем
Зарегистрируйтесь

Проект № Vg1379


Техническое описание
Общая площадь: 413.15 м2
Жилая площадь: 215.87 м2
Высота здания: 11.15 м
Размеры дома: 21м×11.7м
Кол-во комнат: 6
Цокольный этаж: есть
Гараж: нет
Мансарда: нет

Kонструкция
Фундамент: Блоки ФБС по монолитной плите
Перекрытия: Сборные ж/б плиты
Материал стен: Газобетон

Архитектурный раздел
Конструктивный раздел
АР+КР - 100 000 (Со скидкой 20%)
Проект индивидуального двухэтажного жилого дома с подвалом с размерами здания 21,00 x 11,70 м. Наружная отделка здания – облицовочный кирпич (двух цветов). Фундамент – блоки ФБС по монолитной ж/б плите (под всей площадью дома). Наружные стены – из газобетонного блока с воздушным зазором и отделкой облицовочным кирпичом. Внутренние стены – из газобетонного блока. Перегородки – из газобетонного блока. Пол подвала – пол по фундаментной плите. Межэтажные перекрытия – сборные ж/б плиты. Чердачное перекрытие – деревянные балки. Перемычки: монолитные ж/б и из профиля проката. Крыша – сложная. Кровля – битумная черепица. Окна – металлопластиковые. Лестница – металлическая (деревянная по металлическому каркасу).
Генплан застройки участка / Паспорт проекта 7000 руб / 10000 руб
Инженерный раздел (полный) 206500 руб
Смета на строительство 103250 руб
Теплотехнический расчет материалов стен Бесплатно
Стоимость проекта со незначительнми изменениями 114650 руб
Стоимость проекта со средними изменениями* 145700 руб
Стоимость проекта со значительными изменениями** 153900 руб

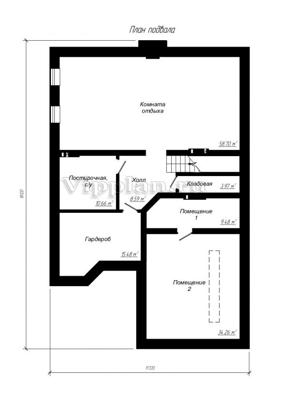
План цокольного этажа


Холл — 8,59 м2
Комната — 58,70 м2
Кладовая — 3,97 м2
Помещение 1 — 9,48 м2
Помещение 2 — 34,26 м2
Гардероб — 15,48 м2
С/у — 10,66 м2

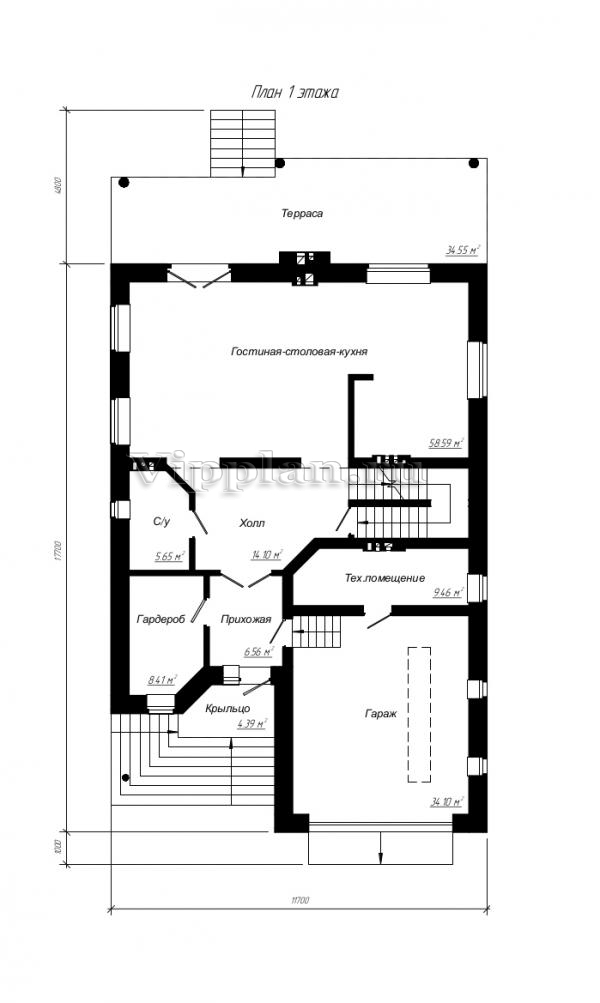
План первого этажа


Прихожая — 6,56 м2
Холл — 14,10 м2
Гостиная — 58,59 м2
Подсобка — 9,46 м2
Гараж — 34,10 м2
Гардероб — 8,41 м2
С/у — 5,65 м2

Проект двухэтажного особняка с цоколем

Проект двухэтажного особняка с цоколем

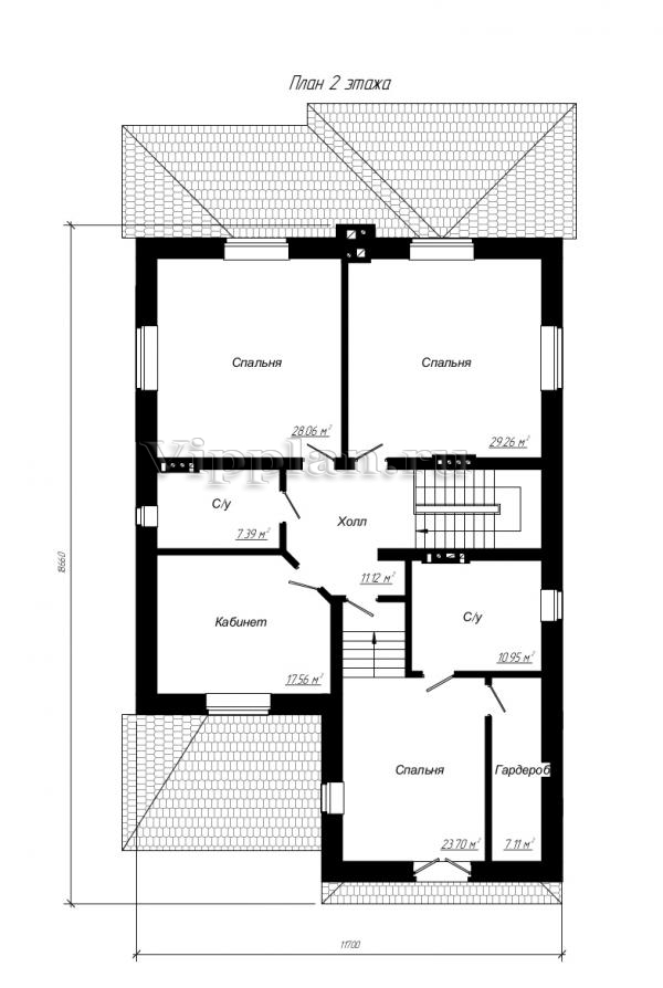
План второго этажа


Холл — 11,12 м2
С/у — 10,95 м2
Гардероб — 7,11 м2
Спальня — 23,70 м2
Кабинет — 17,56 м2
С/у — 7,39 м2
Спальня — 28,06 м2
Проект двухэтажного особняка с цоколем Проект двухэтажного особняка с цоколем Проект двухэтажного особняка с цоколем Проект двухэтажного особняка с цоколем

Модификации проектов

Внесение изменений и привязка к участку строительства

В любой из проектов от компании VIPplan - Елец по вашему желанию могут быть внесены изменения в материалы стен, материалы наружной отделки дома, а также будет произведена адаптация проекта под конкретный регион строительства (с учетом грунтов региона, геологических особенностей вашего участка и местных климатических условий) - БЕСПЛАТНО !!! (кроме проектов со скидкой и проектов наших партнеров).

Любой из проектов, размещенных на сайте elets.vipplan.ru мы можем выполнить из требуемых вам строительных материалов: ячеистый бетон (газобетон, пеноблок), керамоблок, кирпич, шлакоблок, бетонный блок, дерево (брус, клееный брус), каркасная технология (деревянный каркас, металлокаркас (ЛСТК)).

Фасад дома и его наружную отделку так же возможно выполнить с применением различных облицовочных материалов: структурной штукатурки, (с утеплителем и без), сайдингом (пластиковый или металлосайдинг), фиброплитами, кирпича.

 
6 Избранные
проекты

Доставка проектов по России: Москва (Московская область), Санкт-Петербург (Ленинградская область), Краснодар, Ростов-на-Дону, Ставрополь, Сочи, Волгоград, Новосибирск, Белгород, Брянск, Воронеж, Саратов, Хабаровск, Астрахань, Нальчик, Владикавказ, Екатеринбург, Тюмень, Самара, Нижний Новгород, Казань, Пермь, Уфа, Челябинск, Красноярск, Ханты-Мансийск, Иркутск, Курган, Оренбург, Омск, Томск, Барнаул, Новокузнецк, Кемерово, Абакан, Чита, Якутск, Южно-Сахалинск, Петропавловск-Камчатский и страны ближнего зарубежья: Белоруссия, Украина, Казахстан